GCL-H
The GCL-H is designed for high or full-lift sectional and rolling doors that have a 30-cycle/hour or fewer duty requirements. Advanced features and robust mechanical design combine to provide a standard-duty operator that sets a new standard for productivity.
Advantages
- MultiVolt® – Order phase-specific operator for the job and have the ability to select the right voltage on the job site.
- Single Phase: 115/208/230V AC
- Three Phase: 208/230/460V AC
- 575V AC voltage models available separately
- Modular design with optional expansion boards for an advanced timer to close and auxiliary output functionality.
- LCD display with intuitive setup menu. Provides current status and trouble-shooting assistance.
- Internal receiver with the ability to individually add/delete up to 50 Intellicode® transmitters directly from the LCD display.
- EZ Limit® provides for push-to-set limits that stay synchronized with door through a long-term loss of power.
- TensiBelt® primary drive reduction eliminates the need to adjust belt tension.
- Open/close/stop and setup keys included on the control board. Keeps all controls near the LCD display convenient for set up.
Standard Features
- UL 325 2010 approved.
- EZ Limit® electro-mechanical limits.
- MultiVolt® voltage simplification.
- Max run timer automatically adjusts to up and down run time.
- TensiBelt® primary reduction.
- Delay on reverse.
- 16-character LCD display.
- Advanced radio receiver displays and stores activation by transmitter ID number on the LCD screen.
- 3-button control station.
- 2-year/20,000 cycle warranty.
- Programmable mid-stop.
- Emergency hoist for manual operation; available in right or left hand.
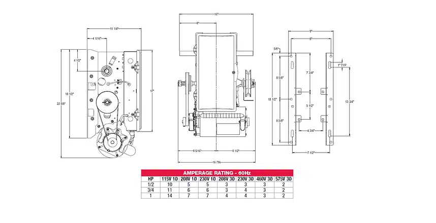
Product Information
Shop Drawings
Other Resources
Product Information
GCL-H Support
Shop Drawings
GCL-H Support
Other Resources
GCL-H Support
Other Resources:
Genie Technical Support is also available:
Monday – Friday: 8 AM – 7 PM EST
Contact us for Commercial Product Support at:
Phone 1-800-843-4084
EASY INSTALLATIONS, EFFICIENT OPERATIONS
What We Offer
Residential
Don't just take our word for it!
EXCELLENT Based on 144 reviews Posted on Jeffery EversonTrustindex verifies that the original source of the review is Google. Great job and fast service getting our roll up door replaced. Jesse was professional and the guys did a fantastic job. Thank you!Posted on Will ContrerasTrustindex verifies that the original source of the review is Google. Tyler and Daniel were amazing. Fixed me up on the same day I called left the work area in better condition than what they walked into. Cheers to these 2 gentsPosted on Courtney CallahanTrustindex verifies that the original source of the review is Google. Tyler Westfall and Matt Sims were out to install a new roll up door for our company and they were amazing! Prompt, polite and clean and did the job fast! We’d hire them again in a heartbeat! The door looks and works amazing!Posted on Lisa GreenTrustindex verifies that the original source of the review is Google. Today Dillion Z and Jesse G came to replace our Industrial Bay Roll up Door. They were prompt, professional and I am forever grateful that they fixed our door! I park inside during the day and have my "garage" back. It was a huge job and they did fantastic work!!!!!!! By the way, they also left it very clean! THANK YOU BOTH!!!Posted on MarieTrustindex verifies that the original source of the review is Google. Freddy and Jesus were extremely efficient, competent, courteous and diplomatic (our garage is a mess. They pretended not to notice!) We are very pleased with their work and products!Posted on Jaclyn KirkwoodTrustindex verifies that the original source of the review is Google. I recently had the pleasure of working with R&S Doors and Gates in Sacramento once again, and we couldn't be more satisfied with their service. We recently moved into a new home and since we used R&S to replace our garage system at our old house … when we saw them at the home show we knew we needed them to come back out to our new place!! From start to finish, the experience was nothing short of excellent. Johnnie L. and Dillion Z. arrived right on time, showcasing their professionalism and dedication to customer satisfaction. They conducted a thorough assessment of the situation and ensured everything was in perfect working order. Their attention to detail and commitment to quality really stood out. It's evident that R&S is a company that takes pride in their work, and this is why I chose to use them again. Having worked with them before, I can confidently say that their consistency in delivering great results is commendable. Everything is up and running smoothly, and I couldn't be happier with the outcome. If you're in need of garage door and gate services, I highly recommend R&S Doors and Gates. You won't be disappointed!Posted on jason harrisonTrustindex verifies that the original source of the review is Google. Tyler James and their team did a great job on our overhead doors. They move really quick and remain safe while working on the project. We would definitely hire R&S to do our projects in the futurePosted on Chewy110Trustindex verifies that the original source of the review is Google. Great company. Tyler is a great tech got my roll up door replaced within the day.Posted on mike sTrustindex verifies that the original source of the review is Google. Great experience with the fellas, they stayed an extra hour in the rain to make sure the doors were installed. Highly recommend.Posted on Gary GoulartTrustindex verifies that the original source of the review is Google. James is awesome
Our service areas
Proudly serving in:
- Sacramento County
- Yolo County
- Placer county
- El Dorado County
- Nevada County